×

0165-870000

info@cswonen.nl

Raadhuisstraat 4701PK Roosendaal

Delen
€ 944 Borg €959
Objecttype Galerijflat
Slaapkamers 2
Woonoppervlakte 55 m²
Interieur Kaal
Omschrijving

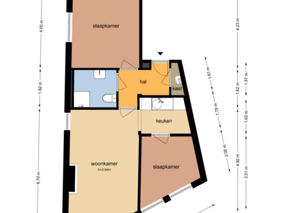
3 kamer appartement te huur in Roosendaal Centrum. Je bereikt de woning via de trapopgang. Het appartement beschikt over een ruime slaapkamer, ideaal voor...

Interesse in dit object?

Neem contact op.

Ik heb interesse

Volledige omschrijving

3 kamer appartement te huur in Roosendaal Centrum.

Je bereikt de woning via de trapopgang. Het appartement beschikt over een ruime slaapkamer, ideaal voor rust en ontspanning. De aangrenzende badkamer biedt alle gemakken die je nodig hebt. De woonkamer straalt een knusse ambiance uit, perfect om te ontspannen of gezellige momenten met vrienden en familie te delen. De deels open keuken voegt een eigentijds tintje toe aan de ruimte en nodigt uit tot culinaire avonturen. In de keuken zit geen apparatuur, uiteraard is hier wel de ruimte voor.

Dit appartement biedt meer dan alleen wonen: het beschikt over een extra slaap- of werkkamer die je naar eigen inzicht kunt gebruiken. Of je nu behoefte hebt aan een productieve werkplek of een comfortabele logeerkamer, deze flexibele ruimte past zich moeiteloos aan jouw levensstijl aan.

De ligging in de Raadhuisstraat zorgt ervoor dat alle gemakken van het stadsleven binnen handbereik zijn. Van lokale winkels tot gezellige cafés en restaurants, alles bevindt zich op een steenworp afstand. Laat je betoveren door de unieke combinatie van huiselijkheid en stedelijke levendigheid die dit appartement te bieden heeft.

Huurprijs: € 944,24 excl. per maand
Servicekosten: € 15,00 per maand
Energielabel: C

Kenmerken

Algemeen
Adres Raadhuisstraat, 4701PK Roosendaal
Huurprijs € 944
Waarborgsom € 959 eenmalig
Soort Galerijflat
Oppervlakte 55 m2
Bouwjaar 1907
Energielabel C
Interieur
Inrichting Kaal
Aantal verdiepingen 1
Aantal slaapkamers 2
Aantal toiletten 1
Aantal badkamers 1
Aantal kamers 3
Badkamer
Toilet Nee
Wasmachine-aansluiting Nee
Spiegel Nee

Gerelateerde objecten

Alle objecten